Campus View – An exceptional development of 22 Student Studios on North Hill
From £230 – £250 per week

Campus View is a brand new student accommodation development opposite the University of Plymouth on North Hill.
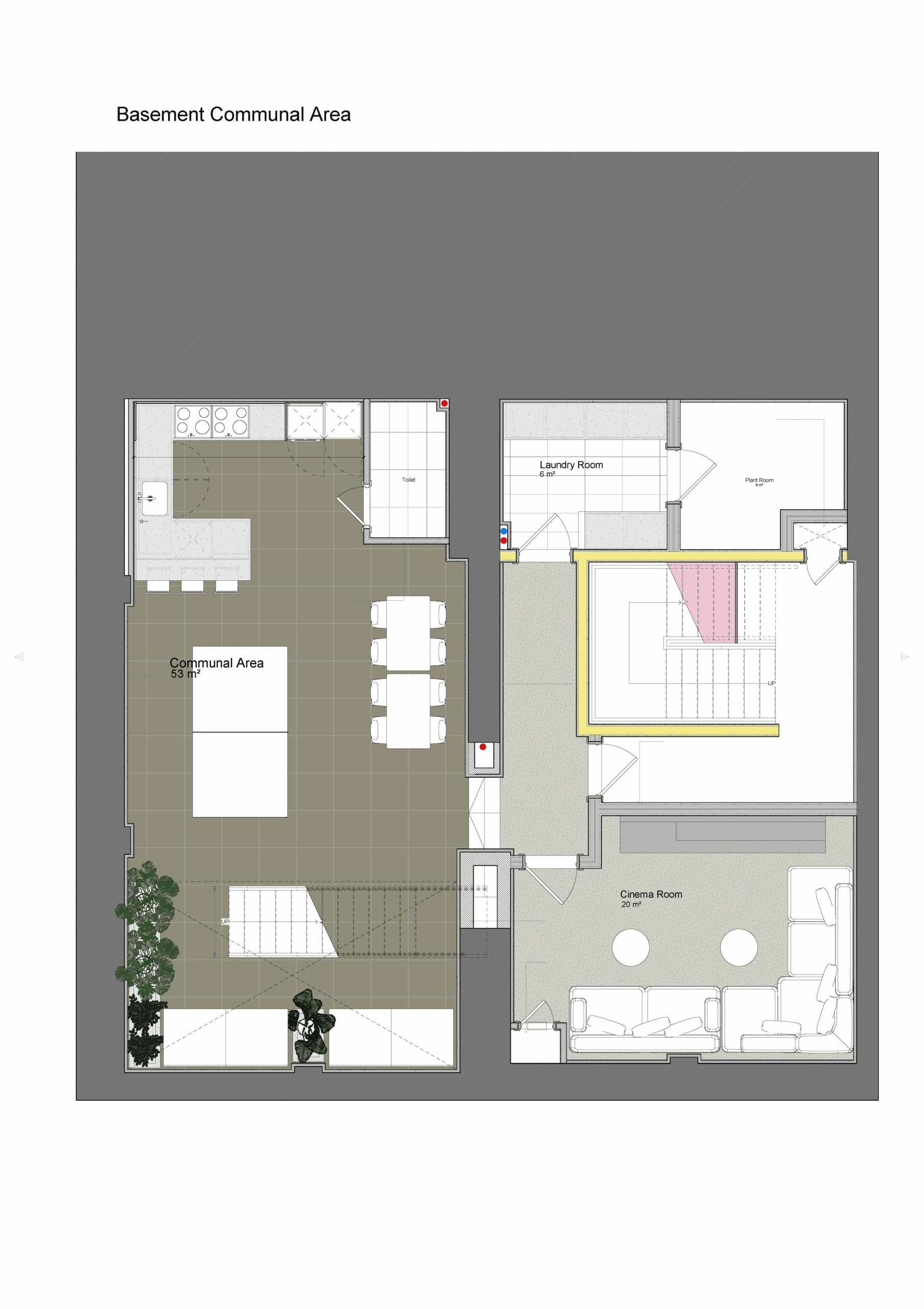
Developed and designed for modern day student living, this exceptional student development will consist of 22 individual spacious studios with a games room, communal study areas, cinema room and free laundry room.
Each studio will have it’s own kitchen with built in fridge, oven and electric hob and a luxury modern ensuite shower room. Within the studio there will be a double bed, built in wardrobe, sets of drawers and desk and study area.
All utility bills are includes and high speed broadband will be included in all the studios and throughout the building.
Why choose Campus View Studios?
Campus View Studios will benefit from a large communal with an additional kitchen and dining area for social gathering. The games room with have additional seating and a pool table plus a separate cinema room to watch the latest movies. The laundry facilities will be complimentary.
- Games Room
- Cinema Room
- Luxury Ensuites
- Social Study Area
- Individual Kitchens
- Free Laundry Room
- Fully Fitted Communal Kitchen
Take your student living to another level by booking a studio at Campus View, the latest development by Bryce Properties.
Don’t choose a student house, choose this student home.
Please note: Images used are CGI mock-ups only and do not necessarily represent the exact nature of the finished apartments.
